Meet The Team

Property Listings

Sell Your Home

Buy A Home

Contact

Visit Us

685 Adelaide St. North
London, ON N5Y 2L4 Canada

120 Parkdale Avenue N Hamilton, Ontario L8H 5W9

4,902 sqft

$1,285,000

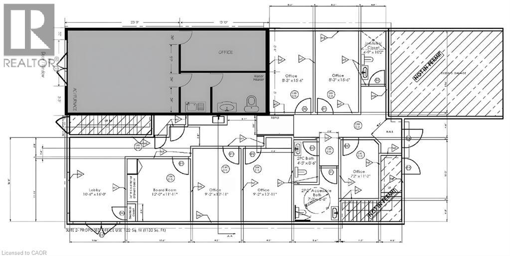
4900 square ft on 2 floors plus 400 sq ft double car garage, C5 Zoning Community Shopping and Residential. Great high traffic location. Solid Concrete block walls and concrete core slab ceiling. Presently used as two commercial units on main floor plus two residential apartments on 2nd floor, plus double car garage. Parking for ten plus cars. Excellent high visibility location on busy street. Tenants pay all utilities. 4 electric meters, 4 gas meters, 4 water meters, 4 furnaces, 4 Air conditioners, 4 hot water tanks. Asphalt shingle replaced 2020. Multiple entrances. HOW CAN YOU MAKE MONEY WITH THIS BUILDING!!! (id:41954)

Property Details

MLS® Number 40752053
Property Type Other
Amenities Near By Public Transit
Equipment Type Water Heater
Parking Space Total 12
Rental Equipment Type Water Heater

Building

Basement Type None
Stories Total 2
Size Exterior 4902.0000
Size Interior 4,902 Sqft
Utility Water Municipal Water

Parking

Attached Garage

Land

Acreage No
Land Amenities Public Transit
Sewer Municipal Sewage System
Size Depth 90 Ft
Size Frontage 70 Ft
Size Total Text Under 1/2 Acre
Zoning Description C5

https://www.realtor.ca/real-estate/28625987/120-parkdale-avenue-n-hamilton

Contact Us

Contact us for more information

Generating Captcha

Mark Thomas Woehrle
Broker

(905) 512-1846
www.youtube.com/embed/WgIL_SYl4zo
www.markwoehrle.com/

RE/MAX Escarpment Realty Inc.
325 Winterberry Dr Unit 4b
Stoney Creek, Ontario L8J 0B6

(905) 573-1188
(905) 573-1189
www.remaxescarpment.com/

Your Favourites

 

No Favourites Found